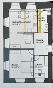
3.5 Zimmerwohnung mit grosser Terrasse
Hauptstrasse 81
9477 Trübbach

Objekttyp
Wohnung
Zimmer
3.5
Wohnfläche
70 m²

Preis Netto
CHF
1,400.00
Nebenkosten
CHF
200.00
Preis Brutto
CHF
1,600.00

Kontakt

Kurath & Pfiffner Immobilien- und Verwaltungs-AG
Sarganserstrasse 48
8887 Mels
+41817200700
Allgemein
Diese helle und stilvoll renovierte Wohnung bietet modernen Wohnkomfort. Die Renovation wurde im Jahr 2023 abgeschlossen und überzeugt durch hochwertige Materialien und ein zeitgemässes Design.

Das Highlight der Wohnung ist die grosse Terrasse, die viel Platz zum Entspannen oder für gesellige Abende im Freien bietet.

Im modernen Badezimmer stehen Ihnen eine eigene Waschmaschine und ein Tumbler zur Verfügung - für maximalen Komfort und Unabhängigkeit im Alltag.

Zusätzlich kann ein Aussenparkplatz für CHF 50.00 dazu gemietet werden. 

Die Wohnung eignet sich ideal für Singles, Paare oder kleine Haushalte, die Wert auf eine zentrale Lage, moderne Ausstattung legen.

Interessiert? Wir freuen uns auf Ihre Kontaktaufnahme!